Сдается в аренду этаж офисного здания площадью 160 м. Истомина 25 (#154675)
Сдаётся в аренду этаж офисного здания по адресу ул. Истомина 25.
Новострой, не был в аренде.
Подходит для размещения офисов целого предприятия, творческих мастерских.
Возможна сдача отдельных помещений.
Охраняемая территория, парковка, внутренний двор.
Все коммуникации, евроремонт.
Остановка общественного транспорта в 15 метрах.
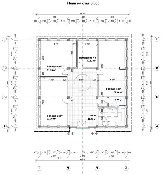
Общая площадь 160 кв.м.
4 Офисных помещения площадью 32м, 32м, 37м, 13м + туалет и холл площадью 46м.
Тел. 0506533624 Андрей
Аренда от собственника, без комиссии. Долгосрочная.
Новострой, не был в аренде.
Подходит для размещения офисов целого предприятия, творческих мастерских.
Возможна сдача отдельных помещений.
Охраняемая территория, парковка, внутренний двор.
Все коммуникации, евроремонт.
Остановка общественного транспорта в 15 метрах.
Общая площадь 160 кв.м.
4 Офисных помещения площадью 32м, 32м, 37м, 13м + туалет и холл площадью 46м.
Тел. 0506533624 Андрей
Аренда от собственника, без комиссии. Долгосрочная.
ВНИМАНИЕ!
Данное объявление скорее всего недействительно. Срок его действия истек 25.02.2014
Данное объявление скорее всего недействительно. Срок его действия истек 25.02.2014
Статистика:
показов: 296;
добавлено: 26.01.2014;
срок объявления истек: 25.02.2014 (-4366 дн[я,ей] назад).
