Агрегат дробления железобетонных элементов тюбингового кольца МПР-1500Т (#180548)
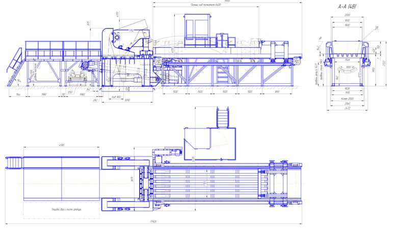
НПП Обуховская промышленная компания проектирует и производит машину прессово-разрушающую МПР-1500Т — комплекс для дробления отслуживших срок железобетонных элементов тюбинговых колец (тоннели метрополитенов и автодорог, шахтные стволы и пр.) Дробление происходит без предварительной разделки тюбингового элемента. Комплекс представляет собой поточную линию из узлов и агрегатов для разрушения (дробления) и сортировки. Принцип работы - элемент тюбингового кольца загружается на рабочий стол МПР1500Т и подается толкателем в сторону гидравлического пресса. После разрушения отделившийся бетонный камень сквозь колосники просыпается на ленточный конвейер. Он доставляет куски бетона в дробильный агрегат для дальнейшей переработки в щебень с последующей сортировкой - рассевом на необходимые фракции. Арматура и металлические включения собираются металлоуловителем. Максимальные габариты ЖБИ элемента для загрузки на рабочий стол МПР1500Т -- до 9000х1800х600мм. На выходе арматура и бетонный щебень 0-150мм. Производительность комплекса - до 30 куб.м/час. Управление автоматическое с дистанционного пульта. Количество персонала - 1 оператор. Гарантия изготовителя - 18 месяцев с даты ввода в эксплуатацию.
ВНИМАНИЕ!
Данное объявление скорее всего недействительно. Срок его действия истек 02.04.2023
Данное объявление скорее всего недействительно. Срок его действия истек 02.04.2023
Контактная информация:
Статистика:
показов: 1123;
добавлено: 02.03.2016;
обновлено: 04.10.2022; срок объявления истек: 02.04.2023 (-1076 дн[я,ей] назад).
Последние объявления в этой категории
Похожие объявления
| 06.10.2025 | Металлические кровати высокого качества | |
| 04.10.2022 | Агрегат дробления ЖБИ | |
| 04.10.2022 | Дробилка для бетона, железобетона МПР-1500 | |
| 04.10.2022 | Агрегат сортировки для плавучей установки |
