Продам Дачу недострой, мыс Фиолент , СТ. Маяк, до моря 300 м (#105146)
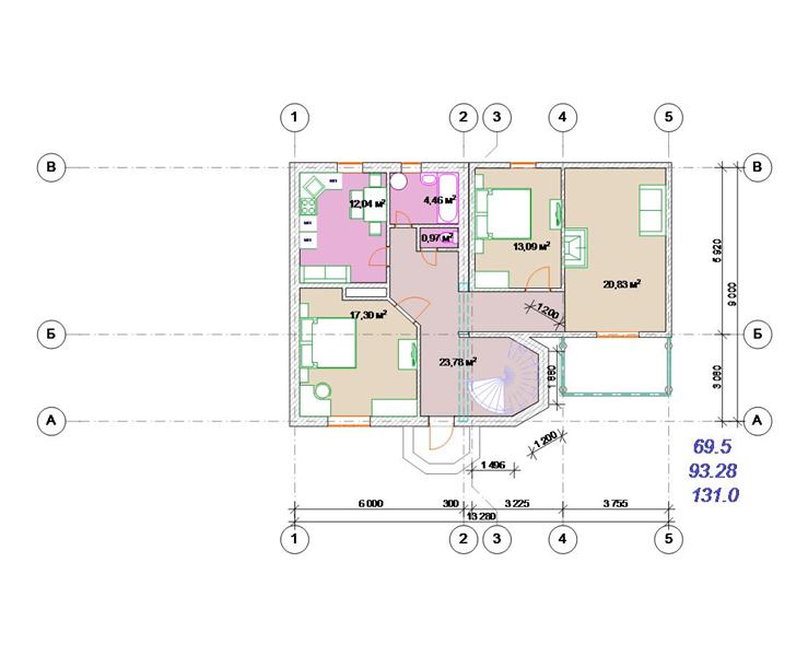
Продам недостроенный дом, мыс Фиолент, СТ. Маяк, до моря 300 м. до остановки 4 мин. вид на море. Готов первый этаж 131м2, ракушняк, кладка в полный кирпич, камин, Ж\Б перекрытия, армапояс, стяжка на пол, общая площадь проэкта 250м2. Сауна/Душевая 38м2, 3 ямы: Сточная 12куб.м, Сауна/Душевая 9кубм., Туалет 8куб.м, зацементированы, все постройки 2011г. 10 соток, гос.акт, участок ровный заезд с 2х сторон улицы. хороший кооператив, Магазины рядом, до центра Севастополя 8км., свет из 2х кооперативов, Вода по графику, бак 10куб.м.+2куб.м. Туалет. Договоренность за городскую воду, газ в проэкте. Не посредник. Видео недостроя http://youtu.be/S66ETUkHOw4
Продам дачу, продам дом, продам недострой, Продам дачу севастополь, Продам дом севастополь, Фиолент, СТ. Маяк, вид на море, дача, дом на море, коттедж, Маяк, Севастополь, Недвижимость, 10 соток, не посредник, Крым, Украина, Ukraine, Crimea, Sevastopol
Продам дачу, продам дом, продам недострой, Продам дачу севастополь, Продам дом севастополь, Фиолент, СТ. Маяк, вид на море, дача, дом на море, коттедж, Маяк, Севастополь, Недвижимость, 10 соток, не посредник, Крым, Украина, Ukraine, Crimea, Sevastopol
ВНИМАНИЕ!
Данное объявление скорее всего недействительно. Срок его действия истек 22.03.2015
Данное объявление скорее всего недействительно. Срок его действия истек 22.03.2015
Контактная информация:
Статистика:
показов: 1198;
добавлено: 13.03.2012;
обновлено: 23.09.2014; срок объявления истек: 22.03.2015 (-4046 дн[я,ей] назад).
