НОВАЯ Однокомнатная квартира на ул. Бастионной 6-а, г. Севастополь (#85466)
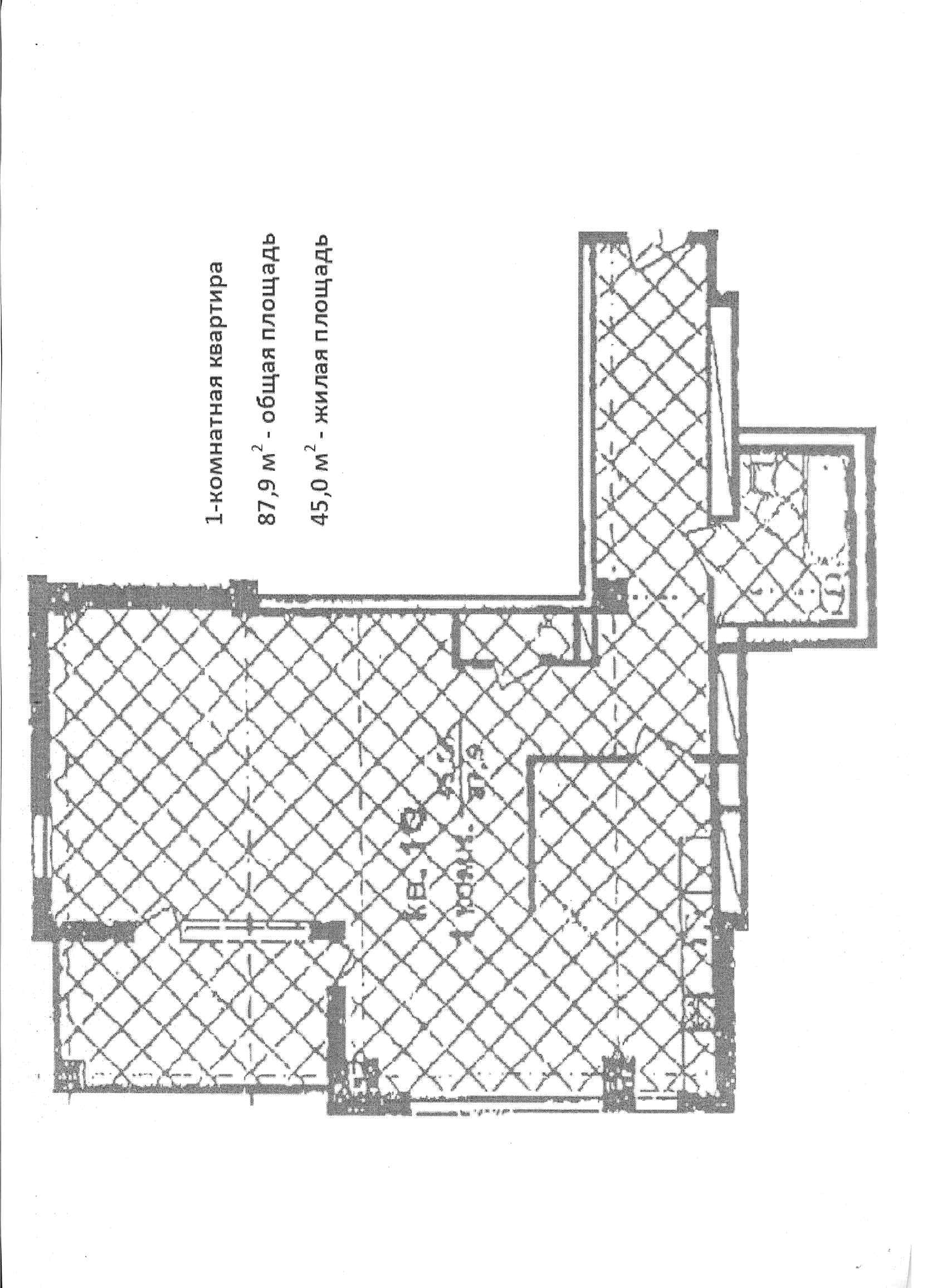
ПРОДАЕТСЯ 1-НО комнатная квартира на ул. Бастионной,6-а. Дом сдан в эксплуатацию в 2008г. (монолитно-каркасный). 3 этаж. Общая площадь - 87,79 м2. Общая комната -45,08 м2. Кухня -15,30 м2. Прихожая - 15,78 м2. Лоджия- 5,00м2. Высота потолка -3,2 м. Есть встроенный шкаф. Отделка после строителей. Есть ОТОПЛЕНИЕ ХОРОШИЕ СТЕКЛОПАКЕТЫ, РАДИАТОРЫ, БРОНЬДВЕРИ, С окон открывается ЧУДЕСТНЫЙ ВИД НА ХЕРСОНЕСКИЙ ВЛАДИМИРСКИЙ СОБОР.
ЦЕНА 1300 долл. США за 1м2. ВОЗМОЖЕН ТОРГ,
ЦЕНА 1300 долл. США за 1м2. ВОЗМОЖЕН ТОРГ,
Контактное лицо: Алена тел. 063-999-93-95
ВНИМАНИЕ!
Данное объявление скорее всего недействительно. Срок его действия истек 29.04.2012
Данное объявление скорее всего недействительно. Срок его действия истек 29.04.2012
Статистика:
показов: 1449;
добавлено: 26.04.2011;
обновлено: 01.11.2011; срок объявления истек: 29.04.2012 (-5139 дн[я,ей] назад).
