производственное помещение (#197362)
Предлагаем в аренду производственное помещение по адресу г.Севастополь, ул. Ген.Мельника 108:
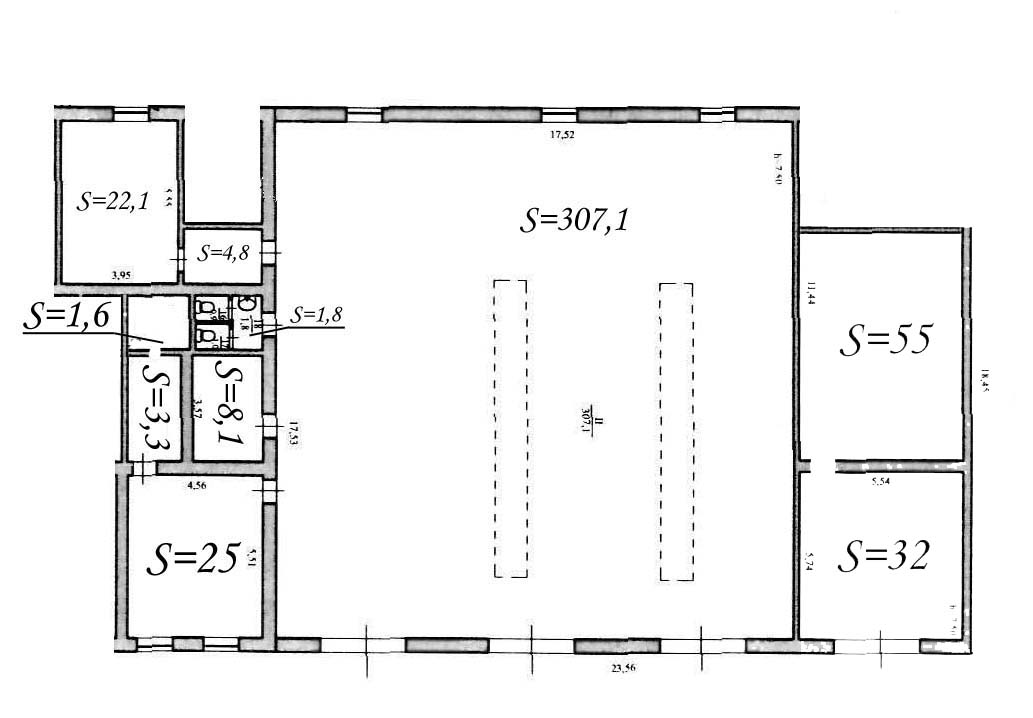
Помещение: камень
Площадь: 461 м2
Этажность: 1 этаж
Высота потолков: 6 м
Эл. энергия: Максимальная допустимая нагрузка на участок 15 Квт/час.
Инфраструктура: огороженная охраняемая промбаза, подъездная дорога с асфальтированным покрытием, удобная транспортная развязка, эл. энергия, вода, интернет. Есть офисное помещение, туалет, раздевалка и душевые. Ручные кран-балки в количестве двух штук (грузоподъемность до 2 тонн).
В помещении две ямы, которые могут быть закрыты.
Возможна аренда станков (цена договорная).
Период заключения договора до 11 месяцев. Доступ в помещение с 6 до 21 часа.
Цена: 140 руб. за 1 м.кв. аренды помещения (64 540,00 руб/месяц) + коммунальные услуги.
Условия оплаты: 100% предоплата.
Телефон: +7978 724-97-69
Помещение: камень
Площадь: 461 м2
Этажность: 1 этаж
Высота потолков: 6 м
Эл. энергия: Максимальная допустимая нагрузка на участок 15 Квт/час.
Инфраструктура: огороженная охраняемая промбаза, подъездная дорога с асфальтированным покрытием, удобная транспортная развязка, эл. энергия, вода, интернет. Есть офисное помещение, туалет, раздевалка и душевые. Ручные кран-балки в количестве двух штук (грузоподъемность до 2 тонн).
В помещении две ямы, которые могут быть закрыты.
Возможна аренда станков (цена договорная).
Период заключения договора до 11 месяцев. Доступ в помещение с 6 до 21 часа.
Цена: 140 руб. за 1 м.кв. аренды помещения (64 540,00 руб/месяц) + коммунальные услуги.
Условия оплаты: 100% предоплата.
Телефон: +7978 724-97-69
ВНИМАНИЕ!
Данное объявление скорее всего недействительно. Срок его действия истек 28.10.2018
Данное объявление скорее всего недействительно. Срок его действия истек 28.10.2018
Статистика:
показов: 531;
добавлено: 18.10.2018;
срок объявления истек: 28.10.2018 (-2697 дн[я,ей] назад).
